鑄鐵鑲銅閘門用途、結構、安裝、選用、保養說明書!
永嘉縣甌北雙金閥門有限公司17年專業從事套筒閥、鑄鐵鑲銅閘門、渠道閘門、配水閘閥等產品開發、生產、銷售為一體的企業。
選擇我們:1、質量先行 2、價格合理 3、交貨快捷。
關于服務:提供全套工程閥門解決方案,鑄鐵鑲銅閘門售前、售中、售后專業服務。
服務熱線:13868378818 曹經理
鑄鐵鑲銅閘門詳細說明書
一.概述及用途:
鑄鐵鑲銅閘門是永嘉縣甌北雙金閥門有限公司吸收國內外先進結構和工藝,而進行設計改進的一種給排水和污水處理的理想設備。本閘門的制造加工符合建設部CJ/T300-1992標準和美國AWWA標準。
廣泛應用于市政、石油、化工、電站、冶金、煤碳、輕工、食品、制藥、水利、污水處理等給排水工程中。對公稱壓力為0.1Mpa以下的用在管道口和交匯窖井、泥沙地、污水渠道、原站井水口、清水池等,用以截止、疏通水流或調節水位。并可與手動、電動、液動啟閉機組合配套使用,實現現場操作或遠距離集中控制,還可與微機聯動控制。

二.結構特點:
本閘門是由門框、閘板、導軌、密封條、可調整密封機構等部件組成。本閘門具有結構簡單,密封性好、耐磨性強、操作簡單、安裝方便,使用壽命長、規格齊全、適應性廣等特點。
三.閘門主要技術參數:

注:水頭超過10m的閘門需另外注明
四.主要零件材料
零件名稱材料
門框、閘板、Ht200
螺桿1Cr18,2Cr13,Ni9Ti13,.304,316
密封面Zcu8-2-2
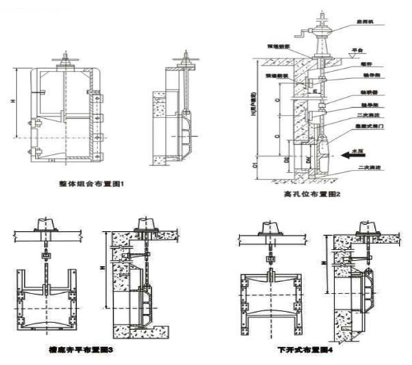
五.安裝形式:

六.啟閉機與閘門布置:
注:1、水頭(H)指最高水位至閘門底部高度;
2、以上表中啟閉力為承受正壓力狀態下;
3、表中噸位已含閘板自重,不含予啟力;
4、預氣力大小與閘門的塊數量,斜度及加工精度有關,一般為開啟力的60%~100%;
5、選用啟閉機的力一般取1.6~2倍的開啟力;
6、其它規格閘門的啟閉力根據承壓力面積參考本表取近似值。
七.安裝事宜:
1、安裝前,要首先檢查豎框與橫框之間、閘板與閘板之間(指多塊閘板組合的閘門)的連接螺絲,是否在運輸裝卸中引起松動,它們的接茬是否錯牙,要調整成一個平面,檢查閘板與閘槽的間隙,保證閘槽與閘板的間隙不大于0.08mm,如有間隙可以調節閉緊裝置。上緊各連接螺栓。
2、安裝時閘門整體豎入預留槽,在兩邊立框的下面墊上調整墊(嚴禁墊下橫梁),兩立框用手動葫蘆和斜拉立穩,將閘門找直找平,各地腳孔內串上地腳螺栓,調節好閘門的位置,支好模板進行二期澆注。
3、澆注混凝土時,流進閘板、閘框、斜鐵、擋板間的灰漿應徹底清除,以防止灰漿凝固后影響閘門啟閉。
4、清除加固物。閘門出廠前,為使閘板、閘框貼合緊湊,安裝后減少間隙,2m以上的閘門在上下框上安裝了4-6個緊閉裝置壓鐵,注意在間隙調整后,閉緊壓鐵拆除,以便閘門啟閉。
5、按預埋圖中的要求預留閘門及啟閉機安裝位置;
6、用吊鉛錘直線方法預埋預埋件,保證其表面和垂直度為1.5~3‰范圍內;
7、用螺栓將門框、導軌固定在預埋件上;
8、當螺桿細長比(提升桿長度/螺桿外徑)4H/d>200時應設置軸導架,軸導架距閘門吊耳距離應大于閘門最大開啟度。
八.選用須知:
1、選用閘門時應注明H值(閘門中心至啟閉機底部平臺高度);
2、啟閉機應根據表中啟閉力及自動化程度確定,具體可參考啟閉機樣本。
3、平臺設計負荷應考慮正反雙向承受(關閉力參考開啟力)。
4、軸導架是根據井深不同而設定的,設計時應與聯軸器不干涉;
5、工作時整條螺桿,聯軸器、閘板都做上下移動為明桿閘門,工作是螺桿不移動,閘板上下移動稱為暗桿閘門。
6、方向承壓閘門應選用時應注明,正向承壓閘門當用于隨受么向水壓時,水頭應<2.5m;
7、暗桿閘門宜裝于風景區或道路中間的窖井內,此種閘門自帶開啟裝置,不需專用啟閉機;
8、訂貨時應注明H,并注明單獨閘門(與配套啟閉機)的具體名稱、型號、規格;
9、本廠可承制其它材料(不銹鋼、碳鋼、鋁合金、塑料)或特殊形工閘門;
10、本廠供貨不含任何預埋件,所以閘門布置參照上頁;
11、本廠所提供樣本如有修訂不另行通知。
九:閘門的使用以及保養
1、閘門應注意閘板的上、下極限位置,不能超限,以免損壞閘門或啟閉機。
2、閘門在起閉過程中如有異常情況應立即停止使用,及時檢查修理。
3、閘門在關閉時距閘底10公分處,暫停2分鐘,讓激流沖凈底門槽內雜物,然后再將閘門關閉。
螺桿式啟閉機
1、一定要保持基礎布置平面水平180o;啟閉機底座與基礎布置平面的接觸面積要達到90%以上;螺桿軸線要垂直閘臺上衡量的水平面;要與閘板吊耳孔文和垂直,避免螺桿傾斜,造成局部受力而損壞機件。
2、將啟閉機置于安裝位置。把一個限位盤套在螺桿上,將螺桿從橫梁的下部旋入啟閉機,當螺桿從啟閉機上方露出后,再套上限位盤。螺桿的下方與閘門連接。
3、啟閉機的基礎建筑物安裝必須穩固安全。機座和基礎構件的混凝土,按圖紙的規定澆筑,在混凝土強度未達到設計強度時,不準拆除和改變啟閉機的臨時支撐,更不得進行試調和試運轉。
4、安裝啟閉機根據閘門起吊中心線,找正中心使縱橫向中心線偏差不超過正負3mm,高程偏差不超過正負5mm。然后澆注二期混凝土或與預埋鋼板連接。
5、起閉機電氣設備的安裝,符合圖紙及說明書的規定,全部電氣設備均可靠的接地。
6、每臺起閉機安裝完畢,對啟閉機進行清理,補修已損壞的保護油漆,灌注潤滑脂。
十:啟閉機調試
1、在無荷載的情況下,保證三相電流不平衡不超過正負10%,并測出電流值。
2、上下限位的調節:當閘門處于全閉的狀態時,將上限壓緊上行程開關并固定在螺桿上。當閘門處于全開時,將下限位盤壓緊下行程開關并固定在螺桿上。
3、啟閉機的主令控制器調整,必須保證閘門升降到上、下限位時的誤差不超過1cm。
4、安裝后,一定要作試運行,一作無載荷試驗,即讓螺桿作兩個行程,聽其有無異常聲響,檢測安裝是否符合技術要求。二作載荷試驗,在額定載荷下,作兩個行程,觀察螺桿與閘門的運行情況,有無異?,F象。確認無誤后方可正式運行。
1、操作人員必須掌握啟閉機的結構、性能與操作方法,并有一定的機械知識,以確保機器的正常運轉。
2、操作前,對起閉機進行全面檢查,個部位潤滑情況是否良好,螺栓有無松動。電動啟閉時檢查電源線路是否接通。
3、電動運轉時,操作人員不得離開現場,發現問題立即停機。
4、起閉機維修時,必須清除載荷。
5、在使用時,需隨時由注油孔注入潤滑油,要經常保持足夠的潤滑油,螺桿要定期清除油垢,涂護新油,以防銹蝕。
浙公網安備 33032402001884號
技術支持:云鼎科技